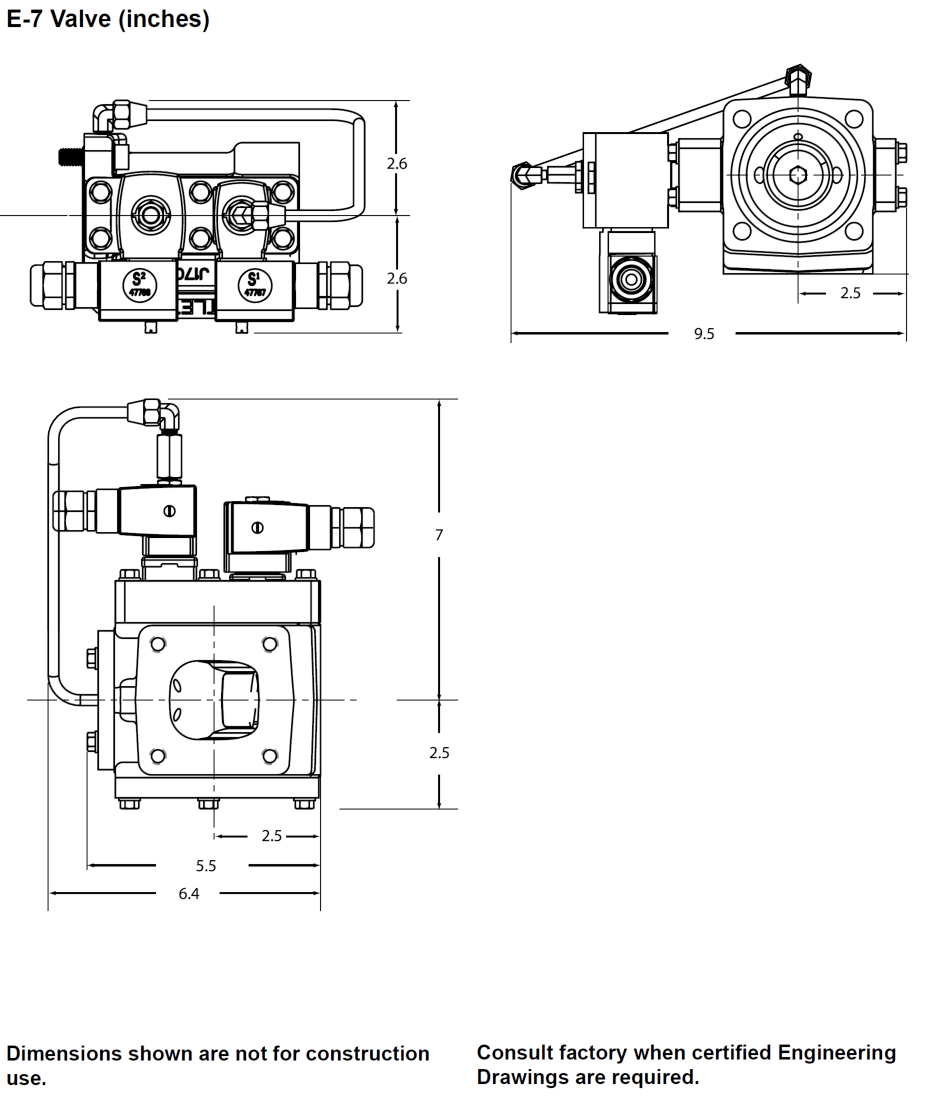
Dimensional Drawings

<< Click to Display Table of Contents >>

Navigation:  Electronic Preset Valve >

Dimensional Drawings

 

e-7_9

 

e-7_10
3